
Barndominiums & Metal Buildings
Barndominiums and metal buildings are a versatile, durable solution for residential, commercial, agricultural, and mixed-use projects. Protech Renovations specializes in custom barndominiums, metal building shells, shops, and storage structures throughout North Central Florida. Whether you need a shell-only build or a fully finished turnkey solution, we deliver quality construction designed for longevity, cost efficiency, and flexibility.

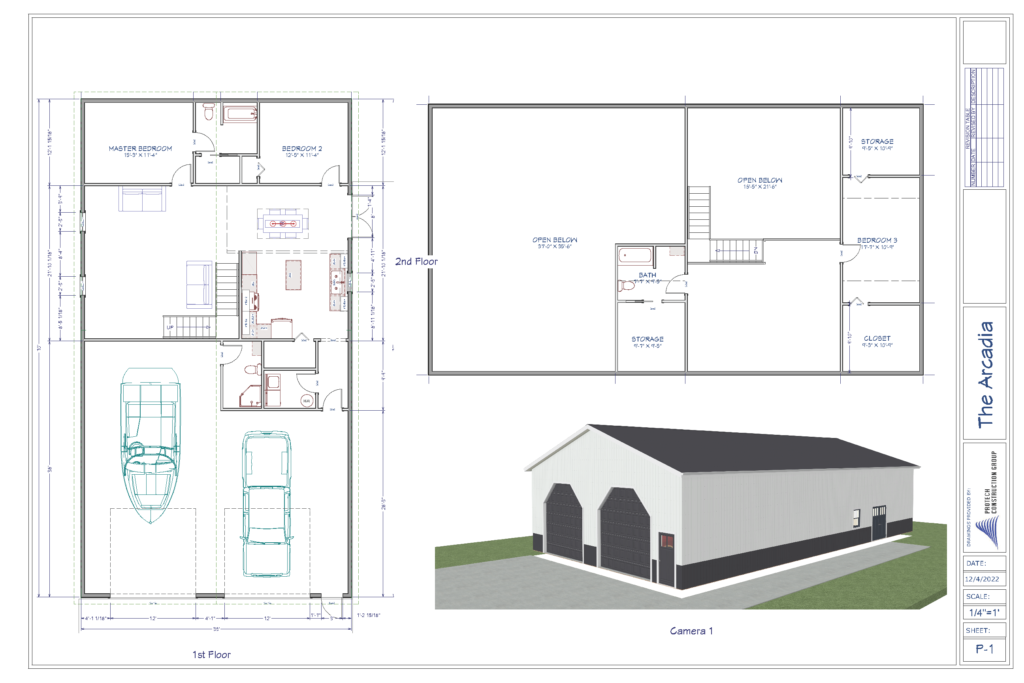
Arcadia

Mossy Oak

Palmetto














































